Ca PPP

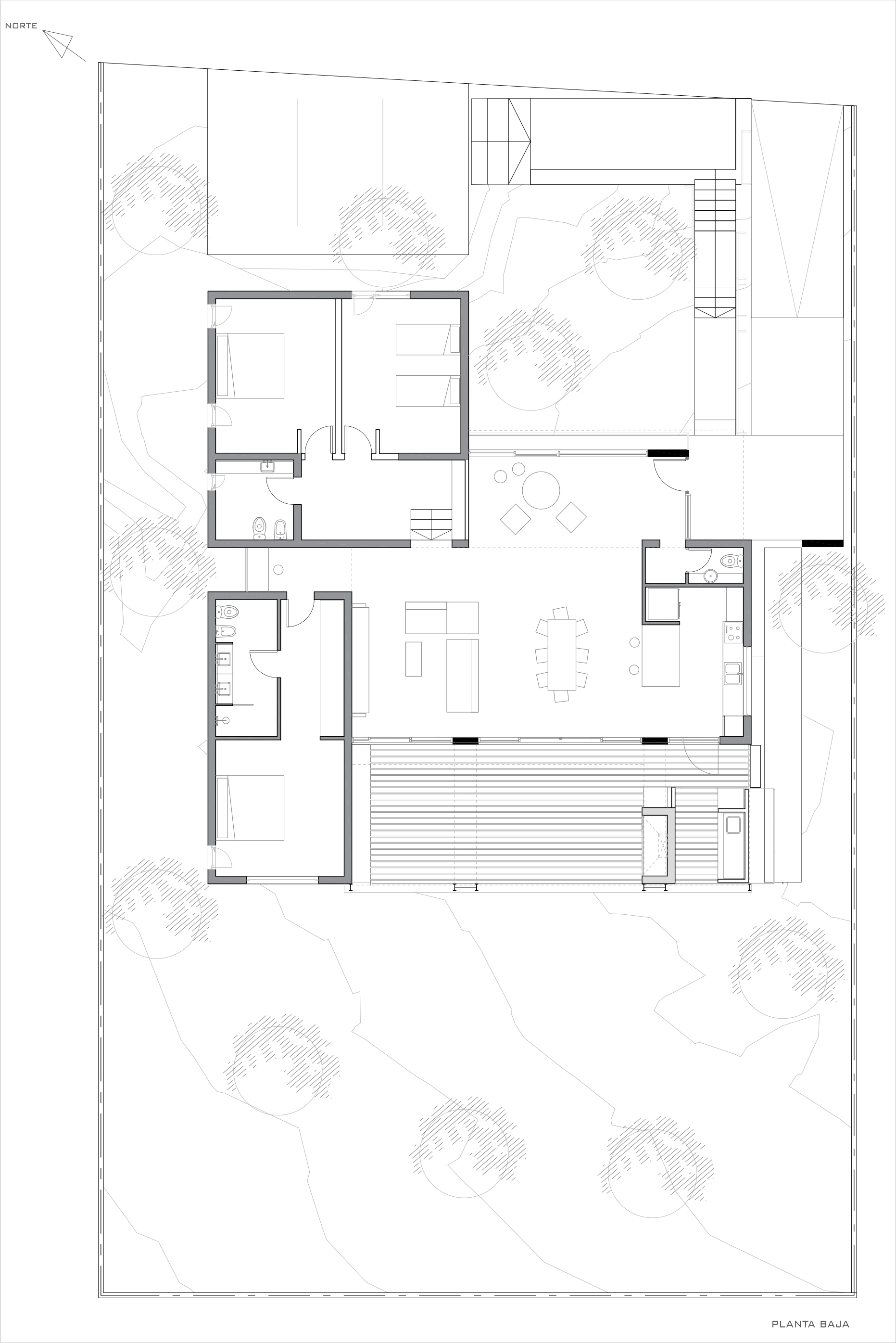
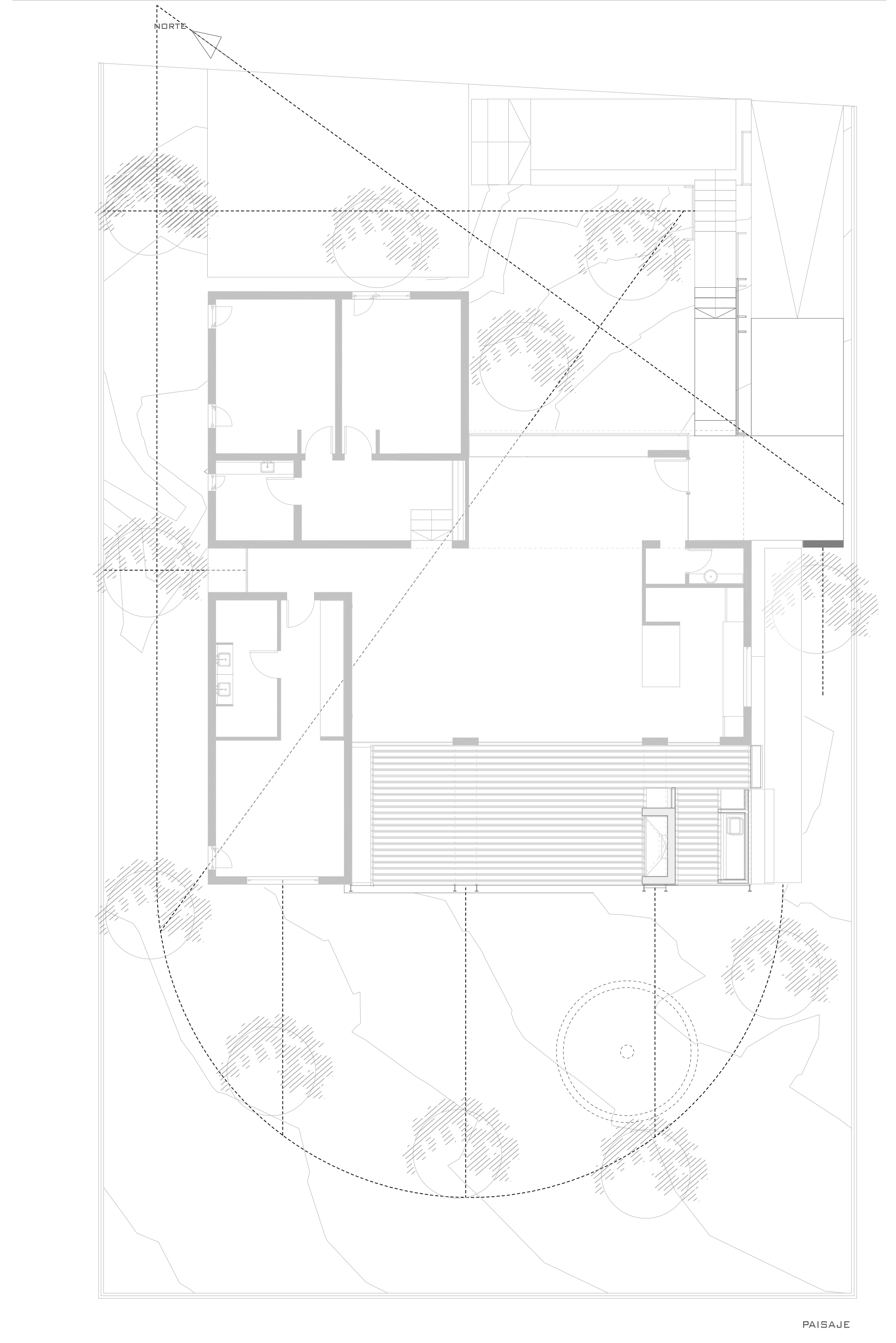
Casa Peter Pan Paraná

Vivienda Unifamiliar. 190m2.

Anteproyecto.

Año. 2019.

Ubicación. Entre Rios, Paraná.