Colombia Park
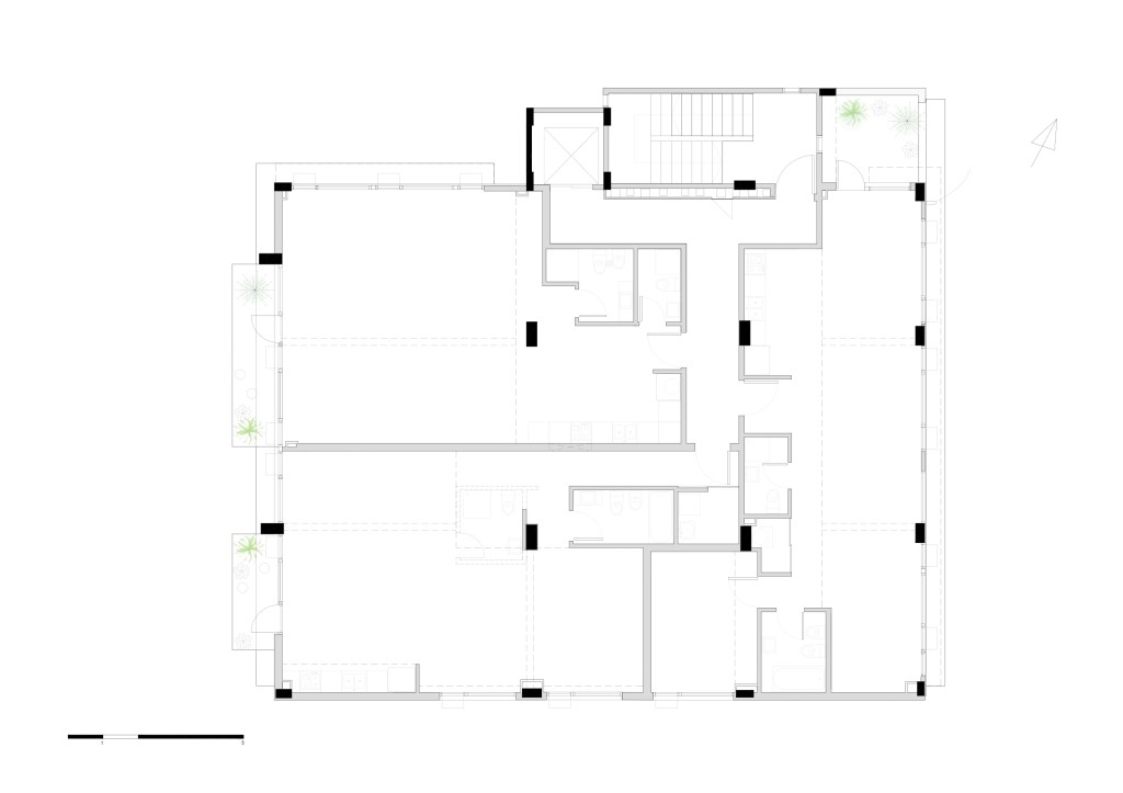
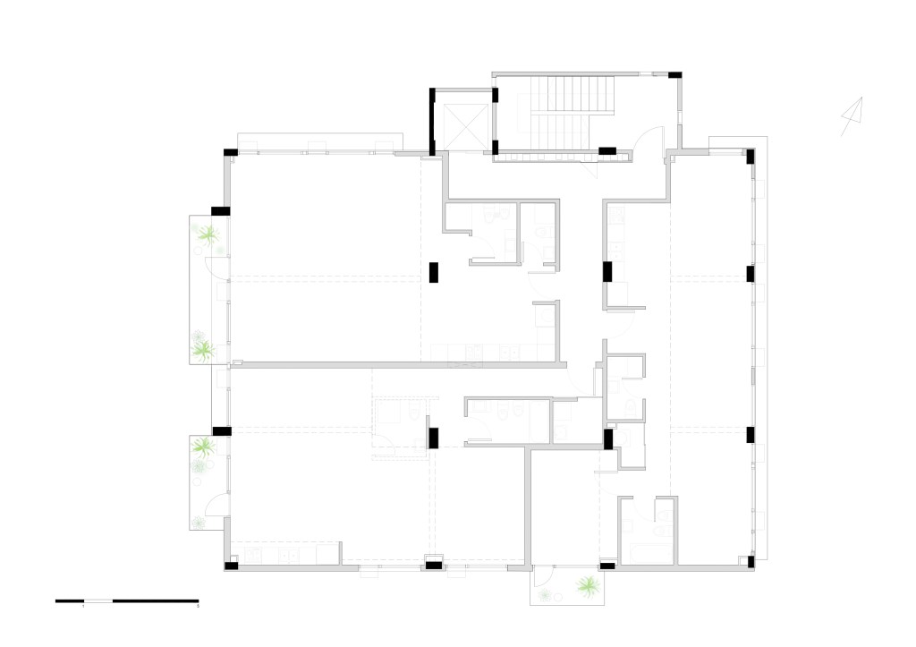
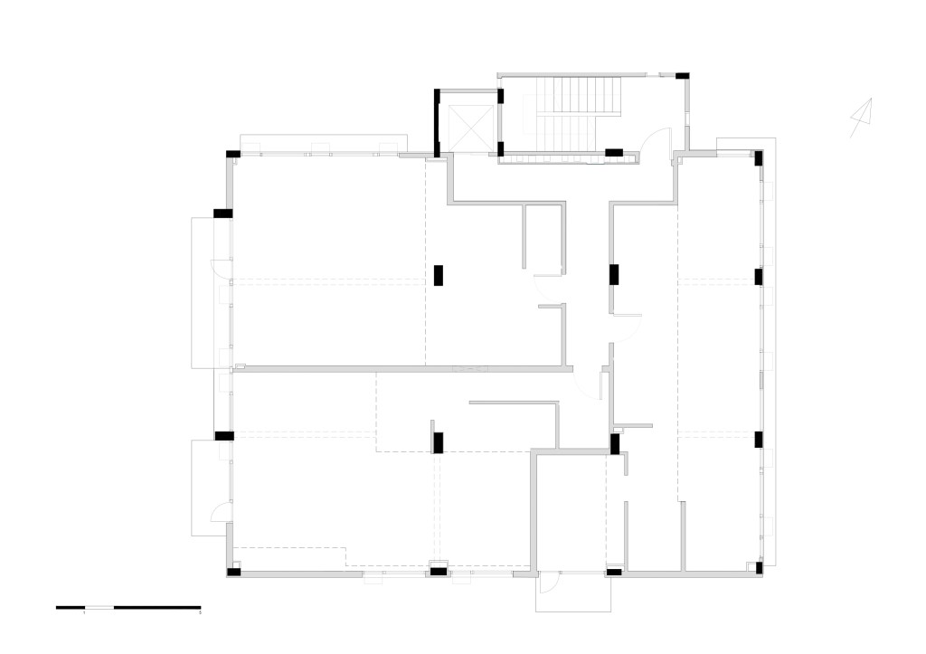
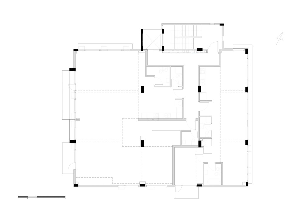
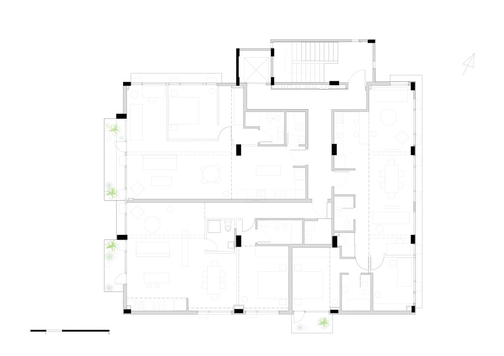
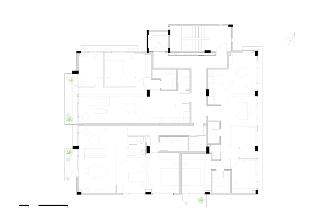
Edificio de uso mixto. Viviendas y Oficinas. 1064m2.
Año. 2016 – 2021.
Ubicación. Villa Martelli, Vicente López.
Proyecto y Dirección de Obra.
























© 2019 Fernando Schapochnik











Disposiciones posibles. Transición entre la planta libre y su apropiación para el uso habitacional.
